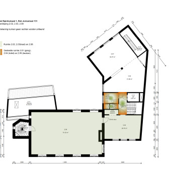
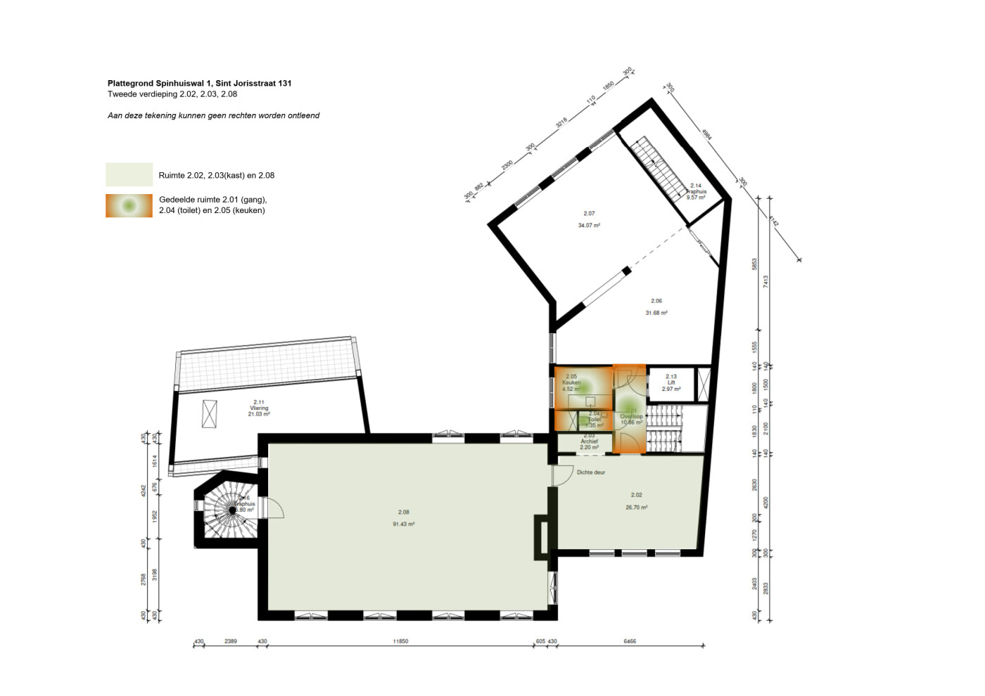
Spinhuiswal 1, tweede verdieping, commerciële ruimte 2.02 en 2.08
Spinhuiswal 1 (5211 JG)
| Zoekgebied | Binnenstad |
|---|---|
| Contract type | Huur |
| Activiteit | Kunst / Cultuur |
| Vloeroppervlakte | circa 132 m² |
| Sanitair | Keuken en toilet |
| Deelverhuur | Niet in delen te huur |
| BTW regime | In overleg |
| Ingangsdatum | per maart of april 2026 |
| Beschikbaarheid | Permanent |
| Huurtermijn | per jaar |
| Energielabel | Label G |
| Toegankelijkheid | Niet geschikt voor minder validen |
| Parkeren | Betaald parkeren |
| Datum plaatsing | 22 december 2026 |
Overige informatie
| Publicatie Spinhuiswal 1, Ruimte 2.02, 2.08 | Klik hier om te downloaden |
|---|
Toelichting
Broedplaats Spinhuiswal
Op de Spinhuiswal komt ruimte vrij voor creatieve makers en initiatieven. Op de begane grond van dit historische pand zijn mogelijkheden voor oefenruimtes, exposities, ateliers en werkplekken en meer. Op de eerste tot en met de vierde verdieping komen verschillende ruimtes te huur; publieksruimte, atelier en commerciële ruimte.
Ruimte 2.02 en 2.08 worden verhuurd als commerciële ruimte.
Huurprijs en voorschot energie- en servicekosten
- Huur: €19.800,00 exclusief 21% btw, per jaar
(€1650,- exclusief 21% btw, per maand) - Voorschot energie: €3.840,00 exclusief 21% btw, per jaar
(€320,- exclusief 21% btw, per maand) - Voorschot servicekosten: €780,00 exclusief 21% btw, per jaar
(€65,- exclusief 21% btw, per maand)
Procedure en aanmelden
Download bij het kopje 'overige informatie' de selectieprocedure. Hierin lees je alle benodigde informatie over de procedure, de huurprijs, energie- en servicekosten en hoe je je aan kunt melden.
Wil je deze ruimte graag huren? Stuur dan een e-mail naar cultuur@s-hertogenbosch.nl.
